墨西哥,梅里達,Wóolis住宅 / Arkham項目團隊
世界建筑
09-01
2021

Arkham項目團隊公布了其在墨西哥梅里達新建成的 "Wóolishouse",這是一個擁有豐富瑪雅遺產的地方。為了慶祝其背景的歷史,設計團隊和工匠們將該項目命名為 "球 "或 "圓",作為對古瑪雅語言的致敬。這個名字與住宅所圍繞的中心圓柱體相呼應,這也決定了空間的獨特性質。該團隊指出,該住宅邀請游客記住尤卡坦首府的起源,形成了一個現代的天文臺,被不斷變化的自然陽光所照亮。 這種在混凝土格子上的照明條件的變化在視覺上代表了時間的不斷流逝。

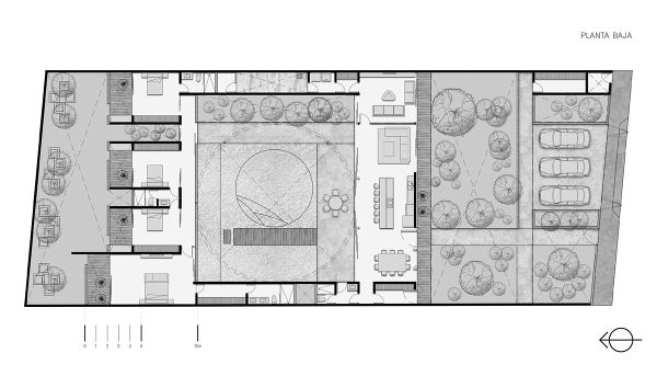
Arkham項目團隊在其場地內精確地確定了Wóolis住宅的方向。中央的圓柱體及其微妙的格子結構,使自然光能夠照亮庭院和游泳池。同時,圓柱體的深度確保了空間得到足夠的遮擋,使該區域在一天中保持不封閉和舒適的居住環境。房屋的社交區域向外開放到這個庭院,將室內和室外聯系起來,當大玻璃門打開時,兩個聚會空間可以相互滲透。

Arkham項目將Wóolis房子的院子和它的社會空間聯系起來,但私人區域卻被封閉起來,成為一個隱蔽的地方。同時,一個較小的天井從院子里延伸出來,里面有一棵大的阿瓦拉莫樹,它高于整個結構的屋頂線,邀請游客在進入房子之前就期待著這個露天的綠洲。






附件:
