墨西哥,圖盧姆,綠化住房 / Grajales建筑師事務所
世界建筑
09-07
2022
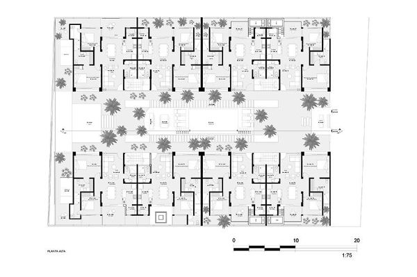
位于墨西哥的工作室Grajales Arquitectos在圖盧姆完成了一個名為TOH的綠化住房項目。地面以上有兩層,共計16套公寓,所有公寓都圍繞著一個巨大的中央天井,天井是綜合體的公共區域。
項目的名字來自于Toh鳥,一種來自里維埃拉瑪雅的物種,以其鮮艷的羽毛和獨特的尾巴而聞名。眾所周知,這些鳥類原產于圖盧姆的“仙人洞”,即充滿地下水的空洞。建筑師對雄偉的鳥類表示敬意,解釋住房項目的居住者“就像這些鳥類一樣”。
Grajales Arquitectos的TOH住房項目同時被其對自然材料的使用所定義,其外墻由當地采購的藤蔓板圍住。在每個單元的臥室里也可以看到有紋理的藤蔓板。該團隊解釋說。就像鳥兒在巢中休息一樣,我們的用戶也會有同樣的感受。
這個外墻是由巨大的、可操作的百葉窗組成的,可以根據居住者的需要折疊打開或關閉。這是一種內在的狀態的表達,表達了使用者的當時的情況。除了當地的藤蔓植物,該團隊還利用了該地區的各種材料。這些材料包括藤條、“瑪雅景觀采石場”、Chukum灰泥和Parota木材。該團隊繼續說:“它的設計、材料的選擇、色調和植被尋求產生一個平靜和和平的空間。該項目探索了內部和外部、社區和私人空間的持續關系,照顧到了與周圍環境的輕松和尊重的氛圍”。
項目信息:
項目名稱:卡薩-托赫
建筑:Grajales Arquitectos | @grajalesarquitectos
地點:墨西哥,圖盧姆
設計團隊:卡洛斯-格拉哈萊斯,安東尼奧-奧喬亞,迭戈-貝弗里多
合作者:Paisajismo La semilla Tulum
建筑面積:1,570平方米
攝影:Oscar Hernandez | @oscarq_hdz
























