捷克,集裝箱旅館 / artikul建筑事務所
世界建筑
04-28
2021
捷克共和國這個時尚潮流的酒店是使用丟棄集裝箱建造的,它位于易北河litomě?ice鎮附近,由于該建筑接近附近的鐵軌,因此該設施被稱為“猜火車旅館”。該設計由一個40英尺長集裝箱和兩個整齊堆放在地面的高達20英尺的集裝箱。
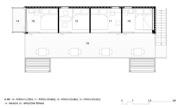
這個環境友好型的方案設計由artikul建筑師設計,它的客戶想要一個可以不斷遷移的酒店。較低的兩個空間分別是浴室,淋浴,以及一個倉庫和一個客房。在上層還有四個小木屋,每個小木屋都有地板到天花板的落地窗,毗鄰外部階地,還有戶外的觀景平臺。
內部空間大面積使用膠合板,大部分的家具均是專門定制。內置水儲層提供了浴缸和水槽,同樣無水馬桶可以用來節省資源。一個由可回收利用的木頭制成的天篷有助于保持室內夏季的涼爽環境。這個集裝箱旅館可以同時容納12位客人,搭建起來只需要短短四個月的時間。
附件:
