英國,住宅 / 羅杰斯建筑事務所
世界建筑
04-14
2021
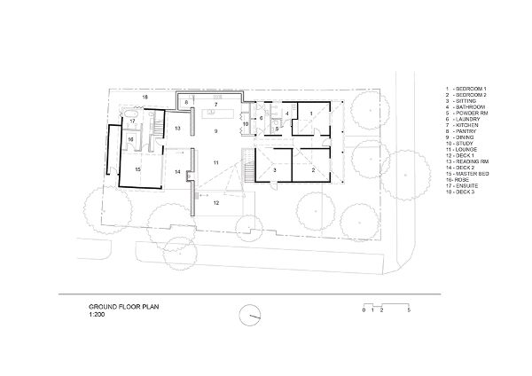
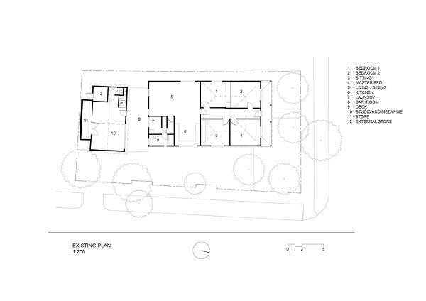
從街道的景觀方面來看,只有極個別的角度可以瞥到屋頂擴展延伸的結構。該項目是由damian羅杰斯建筑事務所設計的,通過使兩棟建筑現有的屋頂形式鏈接使其成為了一個大膽抽象的體積。建筑師是通過建立低層柯爾頓屋頂由三角形、成角的方案似乎折疊在一個玻璃體積來表達對傳統住宅和周圍街景同情,反過來,創建房子新公共領域。
陽光從樹葉間隙漏出來擁抱建筑,成為了美好景觀的一部分。同時,釉面屋頂漂浮在上方,好像樹木分支上的一片葉子連接內部外部的景觀,同時捕獲綠色植物和天空視圖。另外,樓梯邊上提供從屋頂生長的可食用的花園種植物,這樣的景觀通常也會稱為介紹住宅建筑內部靈魂的擴展。
附件:
