泰國,曼谷,Apple Central World / Foster+Partners + Apple
世界建筑
02-18
2021

繼2018年“Apple Iconsiam”開幕以來,Apple現在分享了其在泰國第二個零售地點的首張照片。Apple Central World位于曼谷著名的十字路口Ratchaprasong的中心,為這座充滿活力的城市提供了一個全新的、可到達的目的地。與該科技公司之前的許多門店一樣,該設計是與Foster+Partners合作開發的。

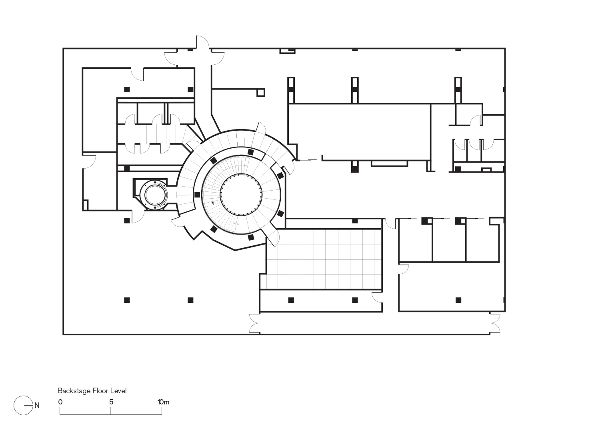
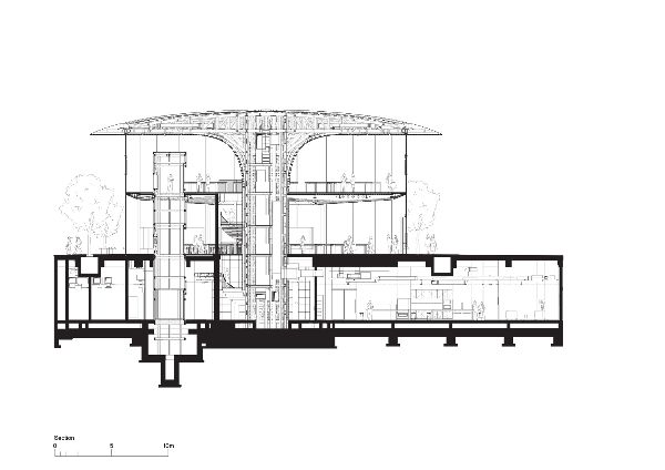
Apple稱,這家店位于懸臂式“樹冠”屋頂下,是其“首次采用全玻璃設計”。場館的兩層由環繞著木芯的螺旋形樓梯和鍍有鏡面拋光不銹鋼的圓柱形電梯相連。客人可以從地面或上層進入,這可以直接連接到曼谷的輕軌和Central World(該市最大的購物中心)。

Foster+Partners解釋說:“中心支撐由1461個歐洲白橡木型材組成,由溫暖的木材包裹而成。橡樹木材被分割成單獨的薄片,并粘在云杉核心上以保持穩定性。每個板條上精心制作的邊緣細節使空氣能夠通過吸聲背襯層從中央結構中排出。”

這家商店包括許多Apple的最新功能,包括論壇、會議室和獨立展示架。該論壇以視頻墻為中心,是未來“Today At Apple”會議的中心,而客戶可以在獨立顯示屏上找到產品和配件。在其他地方,董事會為企業家、開發者和當地企業主提供了一個專門的空間,讓他們接受來自Apple團隊的個人建議和指導。室外廣場為社區提供了一個聚集的地方,有長凳和大樹。






附件:
