德國,法蘭克福,新區hilgenfeld項目 / NL建筑事務+studyo建筑事務所
世界建筑
06-10
2019

該項目由荷蘭NL建筑事務所完成,是一系列實踐項目中的一個,這些實踐項目被授予了一項競賽的一部分,該競賽要求設計價格合理、質量上乘的住宅。來自歐洲各地的107家建筑事務所參加了比賽的第一階段,為德國法蘭克福新區hilgenfeld提交了131個項目。

NL建筑事務所與科隆的studyo建筑事務所合作完成了這個設計,他們提出了一個梯田住宅綜合體,與該公司最近在阿姆斯特丹完成的一個項目有一些相似之處。該項目鼓勵居民關注公共空間,允許他們舉辦聚會、派對,或者只是參觀欣賞花園。

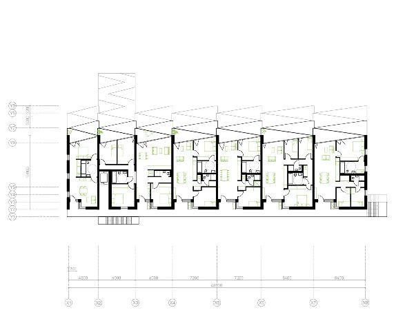
設計團隊解釋說:“露臺住宅充分利用了這種環境和它的兩面性。”“建筑慢慢地后退,每一層形成一個溫和的輪廓和友好的街道輪廓。同時,露臺以一種自然的方式創造出來,朝向可以讓午后陽光充足,公寓兩側都有陽臺,西面是開放的私人陽臺,東面是一個有遮蓋開放的走廊通道。

受天氣保護,綠色的入口通道被下一層覆蓋。所選擇的建筑材料是一種可視的木材和混凝土復合材料,克服了與突出屋頂相關的保溫問題。公寓從前到后有不同的進深,以提供所需的混合公寓類型。

“通過在每個公寓前面引入小的空間,走廊并不僅僅是基礎設施,”NL建筑事務所負責人繼續說道。一個小的空間就這樣產生了,它可以被用來做很多事情,比如擺放植物、停放嬰兒車或長椅來喝早茶、與鄰居見面,或者放置購物袋來找鑰匙。角落的窗戶可以看到沿街的景色。




附件:
