杭州,中國國際設計博物館 / 阿爾瓦羅.西扎+卡洛斯.卡斯塔涅拉
世界建筑
12-24
2018
在浙江的省會——杭州,阿爾瓦羅?西扎與卡洛斯?卡斯塔涅拉合作設計了一個主要的展覽空間,這個設計博物館是中國美術學院的一部分,該學院共有兩個校區,一個在市中心,另一個則位于大都市的郊區。新校區的大多數建筑都是由王澍設計的,“當我們開始這個項目時,他還沒有獲得2012年的諾貝爾獎,”卡斯塔涅拉解釋說。“在我們工作的早期階段,甚至直至今日,我們從他和他同為建筑師的妻子陸文宇那里得到的幫助都是非常重要的。”
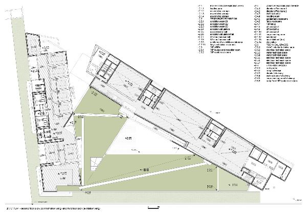
該方案位于三角形地塊上的兩條主要道路的交叉點,這確定了建筑的占地面積和體積。西扎和卡斯塔涅拉設計這個博物館,以展示最近大量收購的包豪斯作品,以及一系列的臨時展覽。建筑的外觀由印度進口的紅色阿格拉砂巖磚覆蓋,白色大理石用于補充微紅色調,而獨立的白色混凝土體量則用作入口。
靈活性和流動性內部布局的配置使得訪客流線十分順暢。地下室包括技術和服務區、檔案館,以及一個通往建筑中心三角形庭院的咖啡廳。在上面,首層包括入口和休息區,以及臨時展覽廳和禮堂。夾層也可以訪問,而坡道通向室外屋頂花園。最后,頂層是關于包豪斯的收藏,還包含行政區域,以及青年藝術家的講習班。
附件:
