印度,新德里,“搖擺”住宅 / Infact工作室
世界建筑
11-12
2018
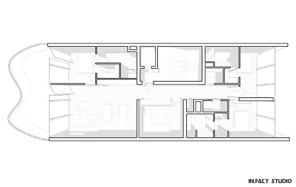
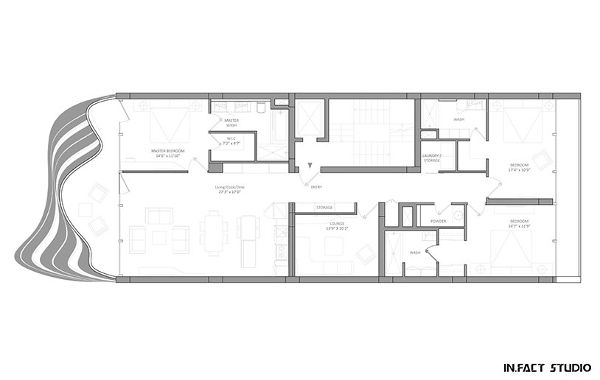
總部位于多倫多的Infact工作室挑戰了新德里“搖擺”住宅的景觀設計,該建筑按照典型樓層布局的固定參數進行設計,并采用外立面設計,使其能夠從周圍環境中脫穎而出。輕質混凝土的立面削減了進入室內的陽光,并在室內空間提供深色陰影和間接光線來應對炎熱的氣候。
Infact工作室在建成的外表皮內植入精心設計的住宅功能,并提議將臥室和生活空間放置在建筑的邊緣,公共設施則沿著核心布置。這個“搖擺”住宅的底層設有一個公共停車場,其外觀既實用又美觀。
附件:
